一戸建て(新築・中古)

(No. 42)【浜松市中央区中郡町】4LDK

おすすめポイント

小学校・中学校500m圏内!スーパー近くで生活便利♪

周辺環境

中郡小学校

300m

中郡中学校

500m

遠鉄ストア西ヶ崎店

950m

物件概要

物件所在地

浜松市中央区中郡町851-3

アクセス

遠州鉄道「遠州西ヶ崎駅」徒歩 約7分

価格

3,390 万円

物件種目

売戸建住宅

土地面積 公簿

152.83m2

私道面積

構造・規模

木造2階建

延床面積

101.43m2

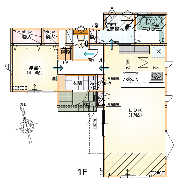
間取り内訳

4LDK

土地権利

所有権

地目

宅地

都市計画

調整区域

用途地域

用途地域の指定なし

建ぺい率

70%

容積率

200%

築年数

R5.3月完成予定 年 (築2026年)

駐車場

並列3台可能

現況

建築中

引渡し日

R5.4月

建築確認番号

第2022確認建築静建住ま06466号

接道状況

西側公道4.0mに接道13.0m、北側公道8.4mに接道11.1m

取引態様

媒介

設備

・オール電化
・フラット35S対応可
・耐震等級3
・対面式ペニンシュラキッチン
・全居室2面採光
・食器洗浄乾燥機
・カップボード
・浴室乾燥暖房機
・2階洗面化粧台
・室内物干し

その他 (備考)

法第22条区域
下水処理区域
線引き前宅地


営業担当 藤原
携帯080-3121-6823

物件所在地

浜松市中央区中郡町851-3

アクセス

遠州鉄道「遠州西ヶ崎駅」徒歩 約7分

価格

3,390 万円

物件種目

売戸建住宅

土地面積

152.83m2

私道面積

構造・規模

木造2階建

延床面積

101.43m2

間取り内訳

4LDK

土地権利

所有権

地目

宅地

都市計画

調整区域

用途地域

用途地域の指定なし

建ぺい率

70%

容積率

200%

築年数

R5.3月完成予定 年 (築2026年)

駐車場

並列3台可能

現況

建築中

引渡し日

R5.4月

建築確認番号

第2022確認建築静建住ま06466号

接道状況

西側公道4.0mに接道13.0m、北側公道8.4mに接道11.1m

取引態様

媒介

設備

・オール電化
・フラット35S対応可
・耐震等級3
・対面式ペニンシュラキッチン
・全居室2面採光
・食器洗浄乾燥機
・カップボード
・浴室乾燥暖房機
・2階洗面化粧台
・室内物干し

その他 (備考)

法第22条区域
下水処理区域
線引き前宅地


営業担当 藤原
携帯080-3121-6823

かなめ創建グループ

人に優しい事業を推進しています