一戸建て(新築・中古)
(No. 50)【浜松市南区増楽町 東棟】4LDK
スーパー、学校近くで生活便利!!
周辺環境
200m
230m
80m
物件概要
|
物件所在地 |
浜松市南区増楽町837番の1部 |
||
|---|---|---|---|
|
アクセス |
東海道本線 『高塚駅』車で約4分 |
||
|
価格 |
3,390 万円 |
物件種目 |
売戸建住宅 |
|
土地面積 公簿 |
212.30m2 |
私道面積 |
|
|
構造・規模 |
木造2階建 |
延床面積 |
103.50m2 |
|
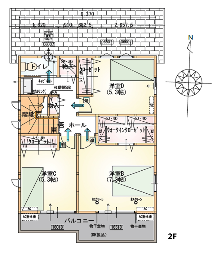
間取り内訳 |
4LDK |
||
|
土地権利 |
所有権 |
地目 |
宅地 |
|
都市計画 |
市街化区域 |
用途地域 |
第2種住居地域 |
|
建ぺい率 |
60% |
容積率 |
200% |
|
築年数 |
R5.1月完成予定 年 (築2026年) |
駐車場 |
並列3台可能 |
|
現況 |
建築中 |
引渡し日 |
R5.2月 |
|
建築確認番号 |
第2022確認建築静建住ま03539号 |
||
|
接道状況 |
南側公道15.0mに接道15.5m |
||
|
取引態様 |
媒介 |
||
|
設備 |
・オール電化 |
||
|
その他 (備考) |
法第22条区域 |
||
|
物件所在地 |
浜松市南区増楽町837番の1部 |
||
|---|---|---|---|
|
アクセス |
東海道本線 『高塚駅』車で約4分 |
||
|
価格 |
3,390 万円 |
||
|
物件種目 |
売戸建住宅 |
||
|
土地面積 |
212.30m2 |
||
|
私道面積 |
|
||
|
構造・規模 |
木造2階建 |
||
|
延床面積 |
103.50m2 |
||
|
間取り内訳 |
4LDK |
||
|
土地権利 |
所有権 |
||
|
地目 |
宅地 |
||
|
都市計画 |
市街化区域 |
||
|
用途地域 |
第2種住居地域 |
||
|
建ぺい率 |
60% |
||
|
容積率 |
200% |
||
|
築年数 |
R5.1月完成予定 年 (築2026年) |
||
|
駐車場 |
並列3台可能 |
||
|
現況 |
建築中 |
||
|
引渡し日 |
R5.2月 |
||
|
建築確認番号 |
第2022確認建築静建住ま03539号 |
||
|
接道状況 |
南側公道15.0mに接道15.5m |
||
|
取引態様 |
媒介 |
||
|
設備 |
・オール電化 |
||
|
その他 (備考) |
法第22条区域 |
||