残り3区画!!値下げしました!!
不動産部よりお知らせです♪
皆さんはショッピングどこに行きますか?
ショッピングモール浜松志都呂まで徒歩3分の立地、メイン道路より一本中に入った雄踏街道沿いに、お勧め物件があるんです。
フロールスクエア浜松志都呂です
全5区画ありましたが、おかげ様で残り3区画となりました!!
そして、価格も値下げしました!!

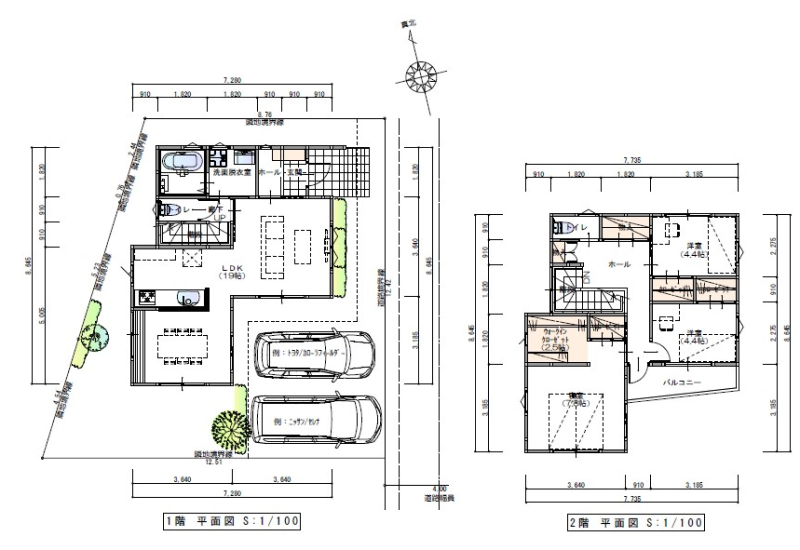
坪数は約40坪前後の土地ですが、間取り次第でLDKの広さを充分とることが出来ますよ

例えばB区画/39.93坪のプラン例です


LDKで19帖をしっかり確保できますよ♪
他2区画も勿論!お勧めプランあります


何より立地が素晴らしいので、是非かなめ創建へお気軽にお問合せ下さい。
詳しくはこちら

――――――――――――――――――――――――――――――――
<建設業>かなめ創建HP
https://www.kaname-souken.co.jp/
新築施工例・イベント情報随時更新中!
<不動産業>かなめ不動産HP
https://kaname-souken.co.jp/estate/
<環境衛生事業>アンドアクアHP
https://andaqua.co.jp/
かなめ創建Instagramはじめました!!
https://www.instagram.com/kanamesouken6666/?hl=ja
フォロー・いいね!よろしくお願いします!